Magna Concursos
Questões
Planos
Entrar
Entrar
Criar Conta
Respondida
444356
Ano:
2009
Disciplina:
Arquitetura
Banca:
FCC
Orgão:
TJ-PI
Provas:
Analista Judiciário - Arquitetura
Provas
×
Instalações Prediais
Instalações Hidrossanitárias
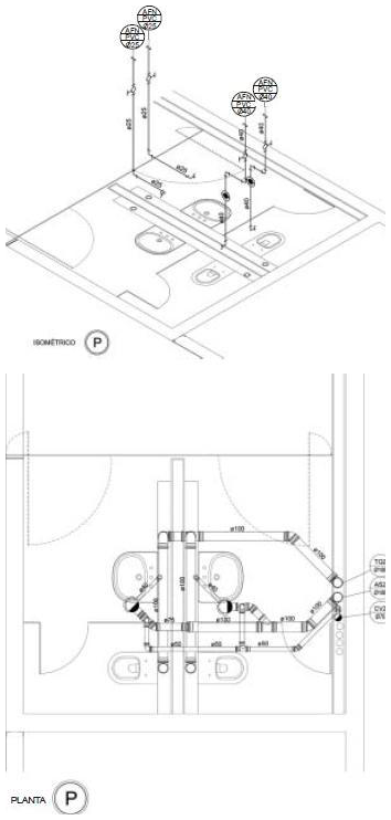
Analisando o desenho isométrico e a planta do projeto executivo de instalações hidrossanitárias dos sanitários abaixo, é correto afirmar:
A
Os ralos secos e sifonados estão separados para integrar o sistema de reuso de águas de esgoto cinza.
B
Os ramais primários e secundários de esgoto deverão ter caimento mínimo para escoar por gravidade até a rede coletora.
C
O sistema de ventilação de esgoto será feito por meio de válvulas de admissão de ar para a ventilação dos ramais.
D
Estão representadas partes de cinco redes do sistema: esgoto, águas servidas, ventilação do esgoto, água fria e águas pluviais.
E
A rede de água não potável alimentará os lavatórios e a de águas de reuso alimentará os ramais de descarga de bacias sanitárias.
Resolver
Comentários
0
×
Cadernos
×
Flashcards
×
Estatísticas
×
Reportar um erro
×
Provas
Questão presente nas seguintes provas
Analista Judiciário - Arquitetura
60 Questões
Resolver Prova
Publicar
Responder
Qual o problema da questão?
Selecione uma opção
Questão Desatualizada
Questão Repetida
Gabarito Errado
Outros Motivos
Mensagem
Enviar
Acessar
Criar Conta
Acesse sua Conta
Google
Facebook
Esqueci minha senha
Acessar
Ainda não tem conta?
Crie uma
!
Crie uma Conta
Criar Conta
Olá, para continuar, precisamos criar uma conta!
É
rápido
e
grátis
.
Google
Facebook
Concordo com os
Termos de Uso
Criar
Já tem uma conta?
Acesse aqui