Magna Concursos
482837 Ano: 2017
Disciplina: Engenharia Civil
Banca: IF-PE
Orgão: IF-PE
Provas:

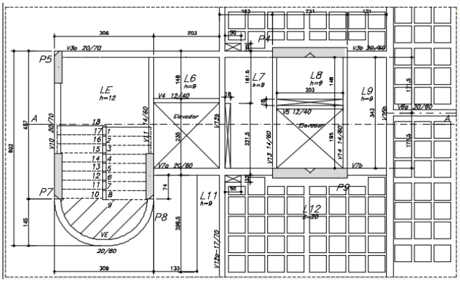
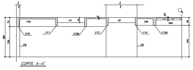
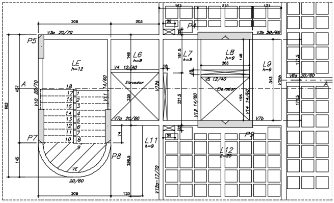
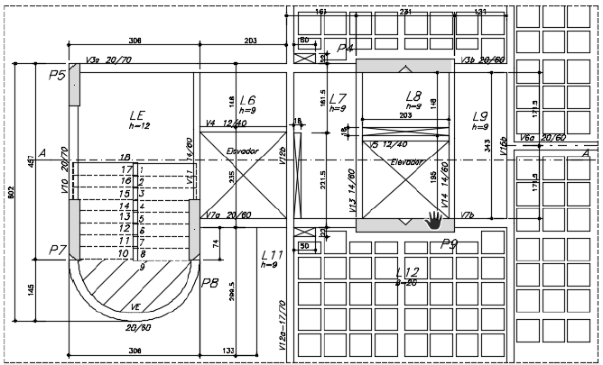
Qual dos desenhos abaixo representa corretamente a planta baixa apresentada no corte a seguir:

Enunciado 482837-1

Questão Anulada

Provas

Questão presente nas seguintes provas

Engenheiro Civil

40 Questões