Magna Concursos
2388647 Ano: 2010
Disciplina: Desenho Técnico e Industrial
Banca: UPENET/IAUPE
Orgão: SUAPE
Provas:
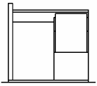
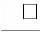
Temos abaixo, em três ângulos diferentes, a representação de uma guarita que servirá para a questão.
Enunciado 2701277-1
A fachada frontal da guarita acima representada é
 

Provas

Questão presente nas seguintes provas

Técnico - Cadista

40 Questões