Magna Concursos
2561377 Ano: 2018
Disciplina: Engenharia Civil
Banca: Marinha
Orgão: Marinha

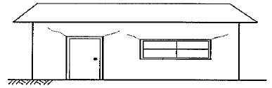
Considere a figura abaixo.

Enunciado 3390682-1

Assinale a opção que apresenta o diagnóstico da patologia da figura acima.

 

Provas

Questão presente nas seguintes provas

Corpo Auxiliar de Praças - Edificações

50 Questões