3524463
Ano: 2024
Disciplina: Desenho Técnico e Industrial
Banca: FEPESE
Orgão: Pref. Concórdia-SC
Disciplina: Desenho Técnico e Industrial
Banca: FEPESE
Orgão: Pref. Concórdia-SC
Provas:
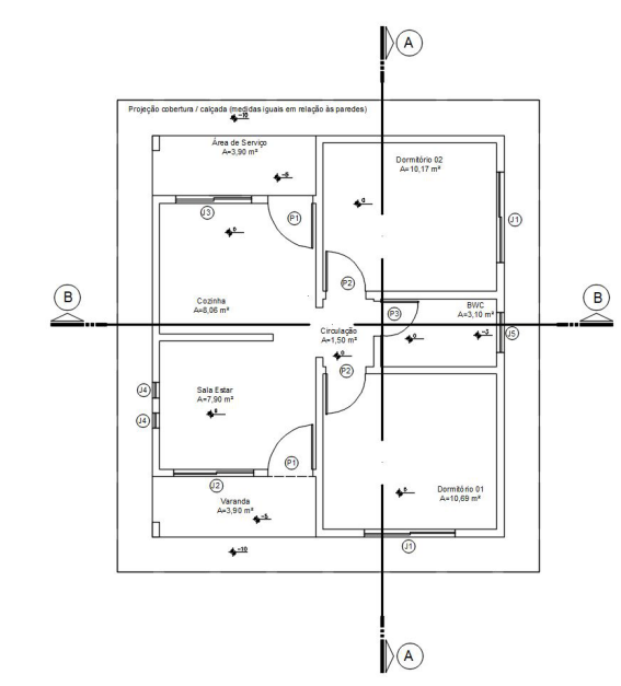
Analise a planta abaixo:

Assinale a alternativa que apresenta corretamente o corte AA representado na planta.