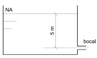
A figura a seguir apresenta um reservatório de água com um pequeno bocal, com diâmetro de 10cm, na região inferior.

Sabe-se, ainda, que o coeficiente de descarga por nesse bocal vale 0,80.
Desse modo, admitindo a aceleração da gravidade igual a 10m/s2 e \( \pi \) = 3, a perda de carga nesse bocal vale
Provas
Questão presente nas seguintes provas
Auditor de Controle Externo - Engenharia Mecânica
100 Questões