A variação na forma de uma bacia hidrográfica influencia a resposta desta bacia a uma precipitação, principalmente no que diz respeito ao tempo de concentração e à probabilidade de cheias. Um dos índices utilizados para contabilizar a forma de uma bacia é o Coeficiente de Compacidade (Kc), que é dado por:
kc = 0,28
em que P é o perímetro em km e A a área de bacia em km2 .
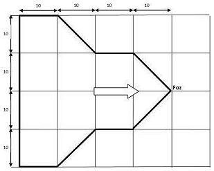
Analise a bacia hidrográfica fictícia a seguir, em que as linhas em negrito são os divisores topográficos.
(Considere √2 = 1,4142 e √5 = 2,2361 ).

O Coeficiente de Compacidade (Kc) desta bacia hidrográfica vale
kc = 0,28
em que P é o perímetro em km e A a área de bacia em km2 .
Analise a bacia hidrográfica fictícia a seguir, em que as linhas em negrito são os divisores topográficos.
(Considere √2 = 1,4142 e √5 = 2,2361 ).

O Coeficiente de Compacidade (Kc) desta bacia hidrográfica vale
Provas
Questão presente nas seguintes provas
Analista em TI e Comunicação - Engenheiro Civil
60 Questões