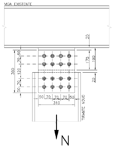
Pretende-se utilizar duas talas para fixar um tirante novo a uma chapa que será soldada à viga existente utilizando 2 x 8 parafusos de !$ \phi !$22 mm (7/8"), tal como se mostra na figura a seguir, onde as duas talas chapas têm dimensões 310 x 360 mm e a chapa fixa à viga.

Assinale a alternativa que remete a, aproximadamente, a máxima força N passível de aplicação, caso sejam usadas chapas de espressura de 7/8" (22 mm) e aço MR250 !$ (f_y \, = \, 250 \, MPaef_u \, = \, 400 \, MPa). !$
Admitir:
!$ \bullet \,\, \gamma_f: \, 1,50 - !$ Coeficiente de Majoração das Ações;
!$ \bullet \,\, \gamma_{a1}: \, 1,10 - !$ Coeficiente de Minoração das Tensões de Escoamento;
!$ \bullet \,\, \gamma_{a2}: \, 1,35 - !$ Coeficiente de Minoração das Tensões de Ruptura;
!$ \bullet \,\, \Delta_{\phi}: \, 3,50 - !$ Acréscimo de 3,5 mm ao diâmetro nominal do parafuso utilizado;