800651
Ano: 2019
Disciplina: Desenho Técnico e Industrial
Banca: VUNESP
Orgão: SEMAE Piracicaba
Disciplina: Desenho Técnico e Industrial
Banca: VUNESP
Orgão: SEMAE Piracicaba
Provas:
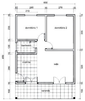
Deseja-se revestir com lajota cerâmica os pisos dos
ambientes hachurados da figura, sendo as medidas
representadas em centímetros.
Considerando que esse piso é comercializado em caixas com 3 m² cada e que haverá uma perda de 10%, a quantidade de caixas necessárias para a execução do serviço será
Considerando que esse piso é comercializado em caixas com 3 m² cada e que haverá uma perda de 10%, a quantidade de caixas necessárias para a execução do serviço será