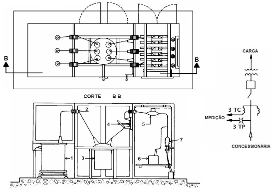
Analise a planta, o corte e o diagrama unifilar de uma subestação abaixadora. De acordo com a figura, os números 1, 2, 3, 4, 5, 6 e 7 indicam, respectivamente:

Provas
Questão presente nas seguintes provas
Analise a planta, o corte e o diagrama unifilar de uma subestação abaixadora. De acordo com a figura, os números 1, 2, 3, 4, 5, 6 e 7 indicam, respectivamente:
