Magna Concursos
578470 Ano: 2016
Disciplina: Engenharia Mecânica
Banca: CESGRANRIO
Orgão: UNIRIO
Provas:

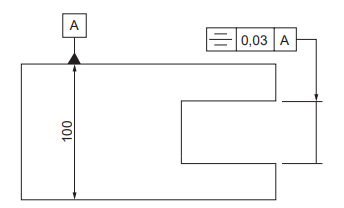
A Figura abaixo mostra a indicação de tolerância.

enunciado 578470-1

Essa indicação de tolerância significa que

 

Provas

Questão presente nas seguintes provas

Engenheiro Mecânico

70 Questões