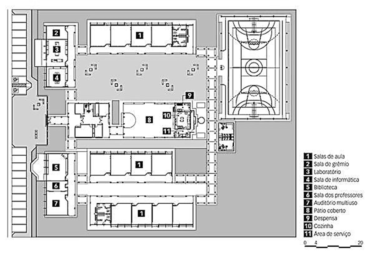
O Ministério da Educação, por meio do Fundo Nacional para o Desenvolvimento da Educação (FNDE), fornece, sistematicamente, como subsídio para Prefeituras Municipais e Governos Estaduais, exemplos de projetos arquitetônicos e complementares para a construção de escolas de diversos perfis em ambientes urbanos e rurais. É o caso do diagrama a seguir.

Esquema geral em planta baixa, modelo de escola com 12 salas de aula, quadra esportiva e laboratórios.
Fonte: Editora PINI, “FNDE subsidia municípios para a construção de escolas-modelo padrão”. São Paulo: PINI, 22 jun. 2012.
Disponível em: <http://infraestruturaurbana.pini.com.br/solucoes-tecnicas/22/artigo275121-2.aspx>.
Acesso em: 10 mar. 2014.
Analisando o diagrama, observa-se