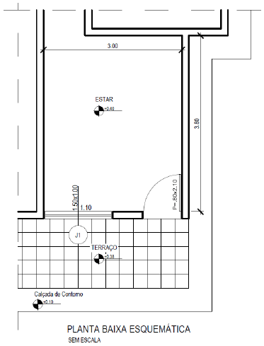
Analise as afirmativas, de acordo com a Figura abaixo:

I. A área interna da sala é 11,80 !$ m^2 !$.
II. O comprimento da janela (J1) é 1,50 metro.
III. A sala está 2 centímetros mais alta que o terraço.
IV. A linha de soleira na porta (P) indica desnível e é representada no lado mais alto do ambiente.
V. A hachura no terraço indica que existe cerâmica no piso deste ambiente.
Estão CORRETAS apenas as afirmativas: