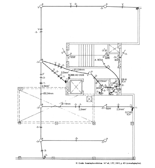
A figura abaixo mostra a planta baixa de parte de uma instalação elétrica predial na qual podem ser observados diversos circuitos relativos a iluminação e a tomadas. A simbologia adotada na planta segue a convencionada pela norma vigente para instalações elétricas em baixa tensão.

Com base nas informações disponíveis na figura, julgue os itens de 106 a 113.
Na instalação elétrica mostrada, há eletrodutos embutidos somente no teto e na parede.