Magna Concursos
2080327 Ano: 2021
Disciplina: Arquitetura
Banca: URCA
Orgão: Pref. Crato-CE
Provas:

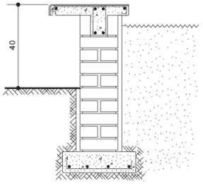
Considere o corte abaixo:

Enunciado 2080327-1

O detalhe apresentado representa uma seção típica de:

 

Provas

Questão presente nas seguintes provas

Arquiteto e Urbanista

60 Questões