Magna Concursos
Questões
Planos
Entrar
Entrar
Criar Conta
Respondida
1412702
Ano:
2011
Disciplina:
Matemática
Banca:
CAIP-IMES
Orgão:
Pref. Santo André-SP
Provas:
Auxiliar Administrativo I
Provas
×
Geometria
Geometria Plana
Quadriláteros
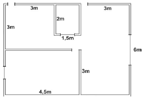
Comprei um apartamento por sessenta e nove mil, seiscentos e quinze reais; cuja planta está representada ao lado. Paguei por m² o valor de
reais. Dei de entrada a quantia referente a 3/15 do seu valor. Financiei
reais.
A
1.537 – 54.572
B
1.487 – 55.782
C
1.600 – 55.682
D
1.547 – 55.692
Resolver
Comentários
0
×
Cadernos
×
Flashcards
×
Estatísticas
×
Reportar um erro
×
Provas
Questão presente nas seguintes provas
Auxiliar Administrativo I
40 Questões
Resolver Prova
Publicar
Responder
Qual o problema da questão?
Selecione uma opção
Questão Desatualizada
Questão Repetida
Gabarito Errado
Outros Motivos
Mensagem
Enviar
Acessar
Criar Conta
Acesse sua Conta
Google
Facebook
Esqueci minha senha
Acessar
Ainda não tem conta?
Crie uma
!
Crie uma Conta
Criar Conta
Olá, para continuar, precisamos criar uma conta!
É
rápido
e
grátis
.
Google
Facebook
Concordo com os
Termos de Uso
Criar
Já tem uma conta?
Acesse aqui