Magna Concursos
Questões
Planos
Entrar
Entrar
Criar Conta
Respondida
765859
Ano:
2016
Disciplina:
Edificações
Banca:
AOCP
Orgão:
Pref. Juiz Fora-MG
Provas:
Técnico de Edificações
Provas
×
Estudos Preliminares
Desenho Técnico em Edificações
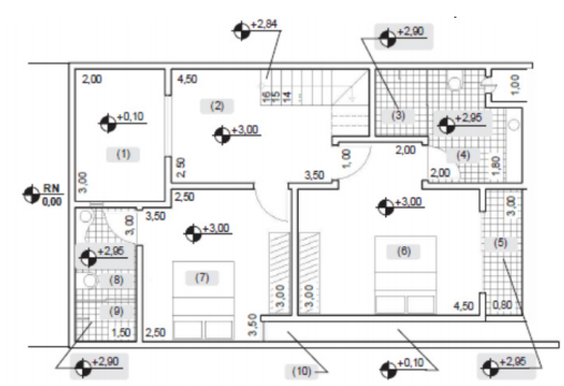
Verificando as cotas do nível de desenho, é correto afirmar que o ambiente (7)
A
está no mesmo nível do ambiente (10).
B
está 3,00m acima do ambiente (1).
C
não se comunica diretamente com o ambiente (2).
D
está 0,16m acima do nível final da escada.
E
está 10cm acima do nível do ambiente (8).
Resolver
Comentários
0
×
Cadernos
×
Flashcards
×
Estatísticas
×
Reportar um erro
×
Provas
Questão presente nas seguintes provas
Técnico de Edificações
50 Questões
Resolver Prova
Publicar
Responder
Qual o problema da questão?
Selecione uma opção
Questão Desatualizada
Questão Repetida
Gabarito Errado
Outros Motivos
Mensagem
Enviar
Acessar
Criar Conta
Acesse sua Conta
Google
Facebook
Esqueci minha senha
Acessar
Ainda não tem conta?
Crie uma
!
Crie uma Conta
Criar Conta
Olá, para continuar, precisamos criar uma conta!
É
rápido
e
grátis
.
Google
Facebook
Concordo com os
Termos de Uso
Criar
Já tem uma conta?
Acesse aqui