A figura a seguir representa a planta baixa de um posto de saúde.

O posto de saúde é formado por duas regiões retangulares com as medidas, em metros, indicadas na figura e com área total de 202 m2. A medida de X, em metros, é
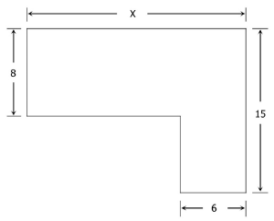
A figura a seguir representa a planta baixa de um posto de saúde.

O posto de saúde é formado por duas regiões retangulares com as medidas, em metros, indicadas na figura e com área total de 202 m2. A medida de X, em metros, é