
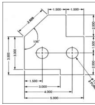
A respeito da figura acima e do software AutoCAD, utilizado para produzi-la, julgue os itens seguintes.
Para manter afastamentos iguais entre as linhas de cota, pode-se utilizar a opção parallel do comando Dim. Esse modo de dimensionamento tem como resultado linhas de cotagem paralelas e igualmente espaçadas, como nas cotas horizontais “1.500”, “3.000”, “4.000” e “5.000” na parte inferior da figura.