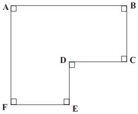
A figura abaixo representa um pátio usado como estacionamento.

Sabendo que AB = 31m, BC = 17m, CD = 16m e DE = 13m, a área do pátio ABCDEF tem o seguinte valor, em m2 :

Sabendo que AB = 31m, BC = 17m, CD = 16m e DE = 13m, a área do pátio ABCDEF tem o seguinte valor, em m2 :