Magna Concursos
Questões
Planos
Entrar
Entrar
Criar Conta
Respondida
3133884
Ano:
2024
Disciplina:
Arquitetura
Banca:
FUNDATEC
Orgão:
Pref. Salto do Jacuí-RS
Provas:
Arquiteto e Urbanista
Provas
×
Desenho Técnico
Expressão e Representação
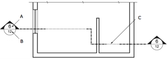
Levando em consideração a NBR 6492/2021, as letras A, B e C da figura abaixo apresentam, respectivamente:
Representação da marcação dos cortes
A
Diâmetro – Número da prancha – Linha de chamada.
B
Número da prancha – Número do desenho – Linha tracejada.
C
Número do desenho – Número da prancha – Linha de corte opcional.
D
Diâmetro do símbolo – Número do desenho – Linha de chamada.
E
Representação de marcador – Número – Linha de corte.
Resolver
Comentários
0
×
Cadernos
×
Flashcards
×
Estatísticas
×
Reportar um erro
×
Provas
Questão presente nas seguintes provas
Arquiteto e Urbanista
40 Questões
Resolver Prova
Publicar
Responder
Qual o problema da questão?
Selecione uma opção
Questão Desatualizada
Questão Repetida
Gabarito Errado
Outros Motivos
Mensagem
Enviar
Acessar
Criar Conta
Acesse sua Conta
Google
Facebook
Esqueci minha senha
Acessar
Ainda não tem conta?
Crie uma
!
Crie uma Conta
Criar Conta
Olá, para continuar, precisamos criar uma conta!
É
rápido
e
grátis
.
Google
Facebook
Concordo com os
Termos de Uso
Criar
Já tem uma conta?
Acesse aqui