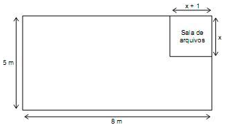
Um escritório possui uma sala retangular, para reuniões, com 8 m de comprimento por 5 m de largura, que será dividida para que se possa fazer uma pequena sala de arquivos, conforme mostra a figura, fora de escala.

Sabendo-se que a área da sala de arquivos irá ocupar 15% da área original da sala de reuniões e desprezando- -se as espessuras das paredes da sala de arquivos, é correto afirmar que o número de metros a menos que o perímetro da sala de arquivos terá, em relação ao perímetro da sala original de reuniões, será

Sabendo-se que a área da sala de arquivos irá ocupar 15% da área original da sala de reuniões e desprezando- -se as espessuras das paredes da sala de arquivos, é correto afirmar que o número de metros a menos que o perímetro da sala de arquivos terá, em relação ao perímetro da sala original de reuniões, será