
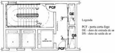
A
figura acima apresenta a planta das saídas de emergência de um
edifício. A ventilação do recinto que antecede a caixa da escada,
denominado antecâmara, pode ser garantida por janela para o exterior,
por dutos de entrada e saída de ar ou por ventilação forçada
(pressurização). A escada enclausurada à prova de fumaça (PF)
corresponde à escada cuja caixa é dotada de portas e revestida de
paredes corta-fogo, e à qual o acesso é garantido por antecâmara,
igualmente enclausurada, ou por local aberto, a fim de evitar passagem
de fogo e fumaça em caso de incêndio. A porta corta-fogo (PCF) é
constituída por folha de porta, marco e acessórios. Considerando essas
informações e a figura acima, julgue o item que se segue, acerca de
prevenção de incêndios.
O uso de dobradiças helicoidais aumenta a durabilidade de uma porta corta-fogo, constituída por chapas de aço galvanizadas, com miolo de material isolante térmico e com estrutura interna também galvanizada.