Magna Concursos
Questões
Planos
Entrar
Entrar
Criar Conta
Respondida
2919691
Ano:
2023
Disciplina:
Física
Banca:
FGV
Orgão:
ALEMA
Provas:
Técnico de Gestão Administrativa - Engenheiro Mecânico
Provas
×
Mecânica Clássica
Estática
Momento da Força e Equilíbrio e Alavancas
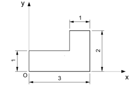
A figura a seguir apresenta uma pequena chapa metálica com eixos de referência de coordenadas x e y com origem em O.
(Dimensões em cm.)
Os segundos momentos de área em relação à origem dos eixos x e y valem, nessa ordem, aproximadamente,
A
3,33 e 6,67.
B
3,33 e 15,33.
C
3,33 e 18,67.
D
6,67 e 15,33.
E
6,67 e 18,67.
Resolver
Comentários
0
×
Cadernos
×
Flashcards
×
Estatísticas
×
Reportar um erro
×
Provas
Questão presente nas seguintes provas
Técnico de Gestão Administrativa - Engenheiro Mecânico
60 Questões
Resolver Prova
Publicar
Responder
Qual o problema da questão?
Selecione uma opção
Questão Desatualizada
Questão Repetida
Gabarito Errado
Outros Motivos
Mensagem
Enviar
Acessar
Criar Conta
Acesse sua Conta
Google
Facebook
Esqueci minha senha
Acessar
Ainda não tem conta?
Crie uma
!
Crie uma Conta
Criar Conta
Olá, para continuar, precisamos criar uma conta!
É
rápido
e
grátis
.
Google
Facebook
Concordo com os
Termos de Uso
Criar
Já tem uma conta?
Acesse aqui