A condição “movediça” em areias é um fenômeno importante, pois pode levar à ruptura de fundo de uma construção. Esse fenômeno ocorre quando o gradiente hidráulico é maior que o gradiente hidráulico crítico.
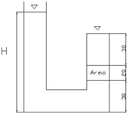
Na figura que segue, está posicionada uma amostra de areia.

Para a situação representada na figura, dado um gradiente hidráulico crítico de 0,8, o valor de H em que a amostra de areia ficará na condição “movediça” terá de ser maior que:
Na figura que segue, está posicionada uma amostra de areia.

Para a situação representada na figura, dado um gradiente hidráulico crítico de 0,8, o valor de H em que a amostra de areia ficará na condição “movediça” terá de ser maior que:
Provas
Questão presente nas seguintes provas