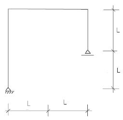
A figura a seguir representa um pórtico plano.

Considere as afirmativas a seguir:
I. O momento fletor na barra vertical da direita será sempre nulo, independentemente do carregamento.
II. O momento fletor na barra vertical da esquerda será sempre nulo, independentemente do carregamento.
III. O momento fletor na barra horizontal será sempre nulo, independentemente do carregamento.
Assinale:

Considere as afirmativas a seguir:
I. O momento fletor na barra vertical da direita será sempre nulo, independentemente do carregamento.
II. O momento fletor na barra vertical da esquerda será sempre nulo, independentemente do carregamento.
III. O momento fletor na barra horizontal será sempre nulo, independentemente do carregamento.
Assinale:
Provas
Questão presente nas seguintes provas
Engenharia Civil ou Arquiteto Sênior
80 Questões
Engenheiro Civil ou Arquiteto
80 Questões