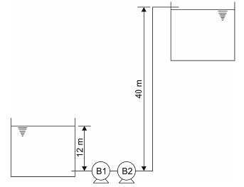
Em um edifício foram instaladas duas bombas iguais ligadas em série como ilustrado na figura abaixo.

O sistema deve recalcar 0,01 m3/s do reservatório inferior para o superior. A perda de carga total no sistema é de 14 m. Como o rendimento das bombas é de 80%, a potência de cada bomba é, em CV,
Provas
Questão presente nas seguintes provas