Magna Concursos
3523569 Ano: 2022
Disciplina: Arquitetura
Banca: Itame
Orgão: Pref. Brazabrantes-GO

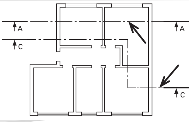
A linha “traço ponto estreita nas extremidades e larga nos desvios” é utilizada no projeto arquitetônico para indicar

Enunciado 4126565-1

 

Provas

Questão presente nas seguintes provas

Fiscal de Posturas e Vigilância Sanitária

40 Questões