Magna Concursos
Questões
Planos
Entrar
Entrar
Criar Conta
Respondida
2506103
Ano:
2015
Disciplina:
Engenharia Civil
Banca:
UFAL
Orgão:
Pref. Inhapi-AL
Provas:
Engenheiro Civil
Provas
×
Instalações em Engenharia Civil
Instalação Elétrica
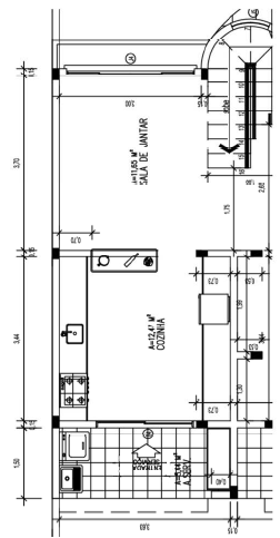
Qual, segundo a NBR 5410, é a potência instalada na cozinha da residência da figura?
Unidade em metros.
A
200 VA
B
400 VA
C
1 200 VA
D
1 900 VA
E
2 400 VA
Resolver
Comentários
0
×
Cadernos
×
Flashcards
×
Estatísticas
×
Reportar um erro
×
Provas
Questão presente nas seguintes provas
Engenheiro Civil
40 Questões
Resolver Prova
Publicar
Responder
Qual o problema da questão?
Selecione uma opção
Questão Desatualizada
Questão Repetida
Gabarito Errado
Outros Motivos
Mensagem
Enviar
Acessar
Criar Conta
Acesse sua Conta
Google
Facebook
Esqueci minha senha
Acessar
Ainda não tem conta?
Crie uma
!
Crie uma Conta
Criar Conta
Olá, para continuar, precisamos criar uma conta!
É
rápido
e
grátis
.
Google
Facebook
Concordo com os
Termos de Uso
Criar
Já tem uma conta?
Acesse aqui