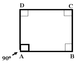
A figura a seguir é um quadrado onde estão destacados os ângulos A, B, C e D com medidas em graus. Os quadrados têm como propriedades lados com mesmas medidas e ângulos congruentes (ou seja, todos têm a mesma medida).

Fonte: O autor, 2020.
Nessas condições, é CORRETO afirmar que a soma de A + B + C + D é igual a