- Gerenciamento, Planejamento e Controle de Obras
- Orçamento no Planejamento e Controle de Obras na Engenharia Civil
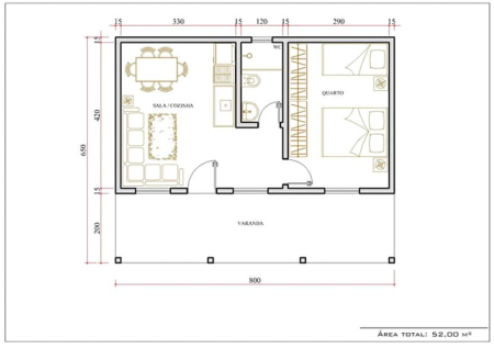
Para uma correta orçamentação de uma obra é necessário um correto levantamento das quantidades de materiais e serviços envolvidos em sua concepção. O profissional de engenharia deve conhecer o projeto em todos os seus detalhes, a partir das plantas baixas, cortes e fachadas definidos na arquitetura, assim como os projetos complementares de fundações, estrutura, impermeabilização, coberta e instalações. A partir da planta baixa do projeto de arquitetura uma pequena unidade residencial abaixo, calcule o quantitativo do que se pede, e escolha a opção correta.
Levantar o quantitativo do seguinte ambiente:
- Sala/Cozinha;

Especificações:
- Piso: cerâmica 30 x 30cm;
- Paredes: pintura látex PVA;
- Teto: Forro em placas de gesso 50 x 50cm;
- Janelas: esquadria em alumínio e vidro 1,20 x 1,00m;
- Porta de entrada: em madeira ficha de 0,90 x 2,10m;
- Porta do banheiro: em madeira paraná de 0,60 x 2,10m;
- Porta do quarto: em madeira paraná de 0,70 x 2,10m;
Informações complementares:
- Desconto de janelas e portas para o cálculo do quantitativo de pintura em paredes;
- Dimensões do hall de circulação: 1,35 x 1,60m;
- Pé direito: 3,00m.
Pede-se calcular o quantitativo da área de piso, paredes e teto da Sala/Cozinha.