3375448
Ano: 2024
Disciplina: Desenho Técnico e Industrial
Banca: FEPESE
Orgão: Pref. Mafra-SC
Disciplina: Desenho Técnico e Industrial
Banca: FEPESE
Orgão: Pref. Mafra-SC
Provas:
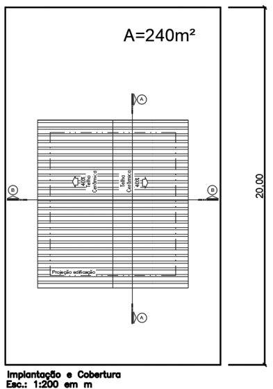
O desenho abaixo representa uma planta de
implantação de uma edificação em seu terreno,
segundo a NBR6492/2021, com a representação da
cobertura.
A escala informada no desenho é 1:200.
Qual a medida no desenho da lateral do terreno que se encontra cotada?
A escala informada no desenho é 1:200.
Qual a medida no desenho da lateral do terreno que se encontra cotada?