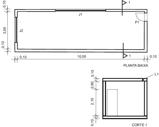
A questão refere-se aos croquis e aos dados abaixo.

Composições Unitárias:
· Emboço – 1m3
Cimento – 200kg
Areia – 500L
Saibro – 500L
· Emboço – 1m3
Cimento – 200kg
Areia – 500L
Saibro – 500L
· Contra-piso – 1m3
Cimento – 450kg
Areia – 1000L
Cimento – 450kg
Areia – 1000L
· Concreto – 1m3
Cimento – 400kg
Areia – 0,6m3
Brita – 0,8m3
Cimento – 400kg
Areia – 0,6m3
Brita – 0,8m3
Dados:
- J1 = 1,50m x 4,00m
- J2 = 1,00m x 2,00m
- P1 = 0,80m x 2,10m
- As cotas do croqui estão em osso e em metros
- Tijolos: espessura = 0,10m
- Emboço interno (teto e paredes): espessura = 1,50cm
- Descontar vãos \(\ge\) 2,00m2
- Contrapiso: espessura = 3cm
- Preços considerados:
Cimento (saco 50 kg) – R$ 15,00
Areia (m3) – R$ 40,00
Saibro (m3) – R$ 30,00
Mão-de-obra emboço (m2) – R$ 10,00
- J1 = 1,50m x 4,00m
- J2 = 1,00m x 2,00m
- P1 = 0,80m x 2,10m
- As cotas do croqui estão em osso e em metros
- Tijolos: espessura = 0,10m
- Emboço interno (teto e paredes): espessura = 1,50cm
- Descontar vãos \(\ge\) 2,00m2
- Contrapiso: espessura = 3cm
- Preços considerados:
Cimento (saco 50 kg) – R$ 15,00
Areia (m3) – R$ 40,00
Saibro (m3) – R$ 30,00
Mão-de-obra emboço (m2) – R$ 10,00
Considerando-se a laje L1 totalmente apoiada sobre as paredes, os consumos de cimento, areia e brita, para execução dessa laje são, respectivamente, em kg, L e L: