
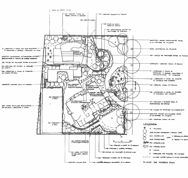
Considerando a figura acima, que ilustra uma área de 50,00 m × 50,00 m, aproximadamente, e na qual os círculos maiores, no lado direito, representam árvores existentes na calçada, julgue os itens subsequentes.
As áreas verdes, denominadas open space nos países de língua inglesa, são consideradas espaços livres de construção.
Provas
Questão presente nas seguintes provas
Analista Ambiental - Arquitetura e Urbanismo
120 Questões