1340112
Ano: 2012
Disciplina: Desenho Técnico e Industrial
Banca: COTEC
Orgão: Pref. Janaúba-MG
Disciplina: Desenho Técnico e Industrial
Banca: COTEC
Orgão: Pref. Janaúba-MG
Provas:
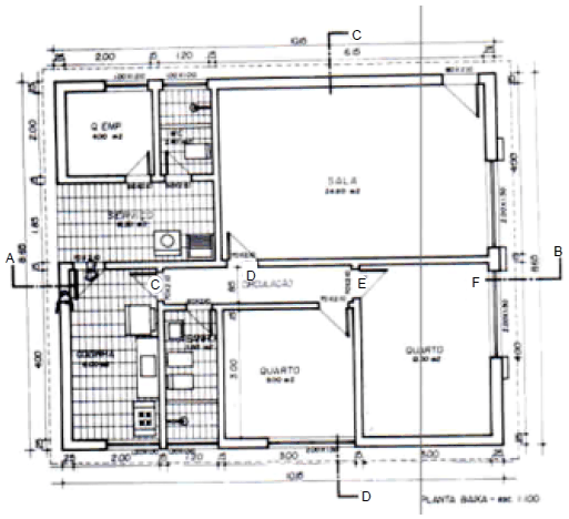
Marque a alternativa CORRETA, observando com atenção a planta abaixo e por onde passa a linha de corte AB.

No corte AB a ser desenhado, o que representam os elementos indicados pelas letras A, B, C, D, E e F, respectivamente?