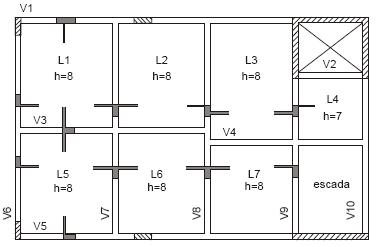
Atenção: Para responder às questões de números 31 e 32 considere a figura que representa uma fôrma de concreto.

Com relação às lajes,
Provas
Questão presente nas seguintes provas
Atenção: Para responder às questões de números 31 e 32 considere a figura que representa uma fôrma de concreto.

Com relação às lajes,