Magna Concursos
852038 Ano: 2019
Disciplina: Engenharia Civil
Banca: Consulplan
Orgão: MPE-PA
Provas:
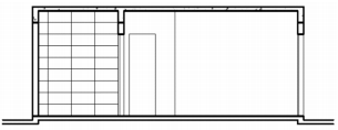
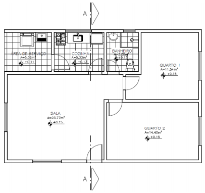
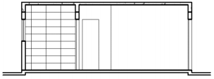
A planta baixa de uma edificação será seccionada pelo corte AA representado pela marcação a seguir. enunciado 852038-1 Analisando os elementos representados, assinale a alternativa que apresenta a solução correta deste corte.
 

Provas

Questão presente nas seguintes provas

Estágio - Engenharia Civil

40 Questões