Magna Concursos
2552702 Ano: 2018
Disciplina: Matemática
Banca: VUNESP
Orgão: PM-SP
Provas:
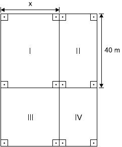
Para efeito de construção de um condomínio, um grande terreno retangular foi dividido em 4 regiões distintas, sendo a região III quadrada e as regiões I, II e IV, retangulares, conforme mostra a figura, cujas dimensões indicadas estão em metros.
Enunciado 2807102-1
Sabe-se que a área da região IV é igual à metade da área da região I, e que a soma das áreas das regiões I e IV é igual a 1 800 !$ m^2 !$. A área da região II é igual a
 

Provas

Questão presente nas seguintes provas

Sargento

60 Questões