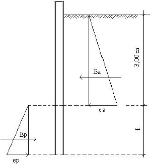
O valor da ficha f, em metros, para que o coeficiente de segurança a transação seja igual a 1,5, é:
Dados:
\(\gamma\) = peso específico da terra = 2,0 tf/m3
Kp = coeficiente de empuxo passivo = 2,0
Ea = 3,0 tf/m
Dados:
\(\gamma\) = peso específico da terra = 2,0 tf/m3
Kp = coeficiente de empuxo passivo = 2,0
Ea = 3,0 tf/m

Provas
Questão presente nas seguintes provas