Observe o desenho a seguir.

FRENCH, 2005.
Sobre os elementos de cotagem nesse desenho técnico, A, B, C e D são respectivamente,
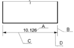
Observe o desenho a seguir.

FRENCH, 2005.
Sobre os elementos de cotagem nesse desenho técnico, A, B, C e D são respectivamente,