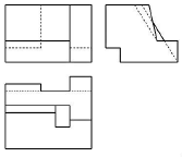
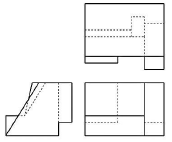
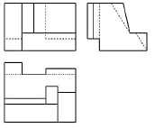
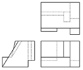
Dada a peça em perspectiva isométrica, assinale a alternativa que apresenta o conjunto de projeções dessa peça no primeiro diedro.

Provas
Questão presente nas seguintes provas
Dada a peça em perspectiva isométrica, assinale a alternativa que apresenta o conjunto de projeções dessa peça no primeiro diedro.
