Magna Concursos
2723764 Ano: 2023
Disciplina: Engenharia Civil
Banca: FCC
Orgão: COPERGÁS-PE

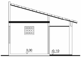
Considere a figura a seguir.

Enunciado 2723764-1

Em relação ao projeto, o desenho é denominado:

 

Provas

Questão presente nas seguintes provas

Técnico Operacional - Edificações

50 Questões