Observe abaixo plantas de três projetos de unidades escolares elaboradas para a Fundação para Desenvolvimento Escolar.

Com relação à coordenação modular e dimensional, constata-se que o módulo adotado é
Provas
Questão presente nas seguintes provas
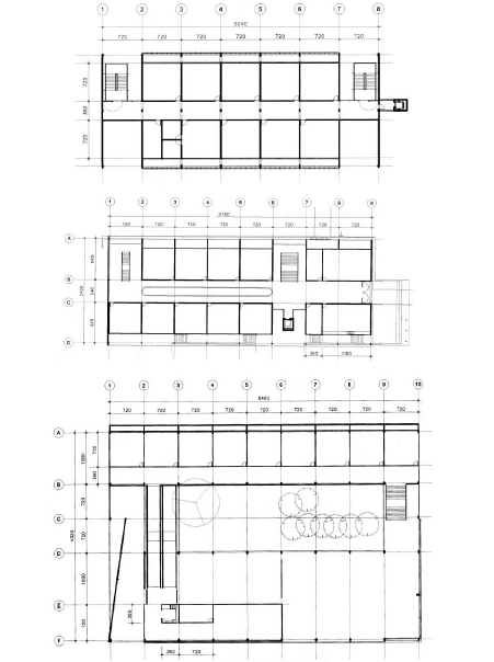
Observe abaixo plantas de três projetos de unidades escolares elaboradas para a Fundação para Desenvolvimento Escolar.

Com relação à coordenação modular e dimensional, constata-se que o módulo adotado é