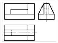
Considere as projeções ortogonais da peça abaixo e assinale a alternativa que corresponde à correta perspectiva isométrica da peça (considere para a leitura das projeções o uso do 1º diedro).

Considere as projeções ortogonais da peça abaixo e assinale a alternativa que corresponde à correta perspectiva isométrica da peça (considere para a leitura das projeções o uso do 1º diedro).
