Magna Concursos
1363603 Ano: 2019
Disciplina: Arquitetura
Banca: IF-PA
Orgão: IF-PA

A Arquitetura Bioclimática, com frequência, se referencia em estratégias tradicionais de construção, e em técnicas até então não-codificadas de produção de anteparos à insolação, filtragem da insolação direta, uso de materiais termo-isolantes e recursos de orientação e configuração de edificações para otimização da ventilação, arrefecimento e troca de calor, quando bem empregados. Consulte as ilustrações de projeto do arquiteto Severiano Porto (Uberlândia-MG, 1928), chamado Casa-Lar, parte de um conjunto construído e projetado entre 1994 e 1997, e marque a alternativa CORRETA.

Enunciado 1363603-1

Figura 6 A Casa-Lar de Severiano Porto. Fonte:NEVES, Letícia de Oliveira. Arquitetura bioclimática e a obra de Severiano Porto: estratégias de ventilação natural. 222 f. Dissertação (Mestrado em Arquitetura e Urbanismo). São Carlos, Escola de Engenharia de São Carlos, Universidade de São Paulo, Programa de Pós-Graduação em Arquitetura e Urbanismo, 2006. p. 156.

Enunciado 1363603-2

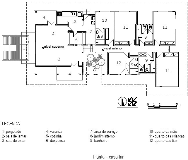
Figura 7 Planta da Casa-Lar, Severiano Porto, parte da Aldeia SOS (1994-1997). Fonte: NEVES, Letícia de Oliveira. Arquitetura bioclimática e a obra de Severiano Porto: estratégias de ventilação natural. 222 f. Dissertação (Mestrado em Arquitetura e Urbanismo). São Carlos, Escola de Engenharia de São Carlos, Universidade de São Paulo, Programa de Pós-Graduação em Arquitetura e Urbanismo, 2006. p. 157.

Enunciado 1363603-3

Figura 8 Projeção de sombra na Casa-Lar. Fonte: NEVES, Letícia de Oliveira. Arquitetura bioclimática e a obra de Severiano Porto: estratégias de ventilação natural. 222 f. Dissertação (Mestrado em Arquitetura e Urbanismo). São Carlos, Escola de Engenharia de São Carlos, Universidade de São Paulo, Programa de Pós-Graduação em Arquitetura e Urbanismo, 2006. p. 159.

 

Provas

Questão presente nas seguintes provas

Professor PEBTT - Arquitetura e Urbanismo

45 Questões