Observe a figura a seguir.

Determine as coordenadas XG e YG, em mm, do centro de gravidade do perfil duplo C acima, considerando que as dimensões indicadas na figura estão representadas em mm. Em seguida, assinale a opção correta.
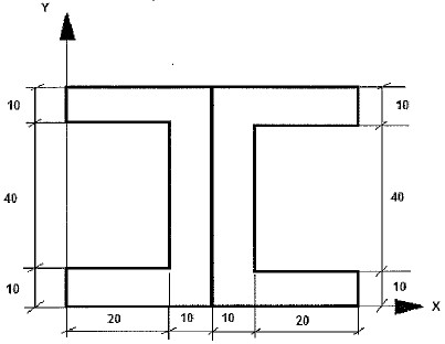
Observe a figura a seguir.

Determine as coordenadas XG e YG, em mm, do centro de gravidade do perfil duplo C acima, considerando que as dimensões indicadas na figura estão representadas em mm. Em seguida, assinale a opção correta.