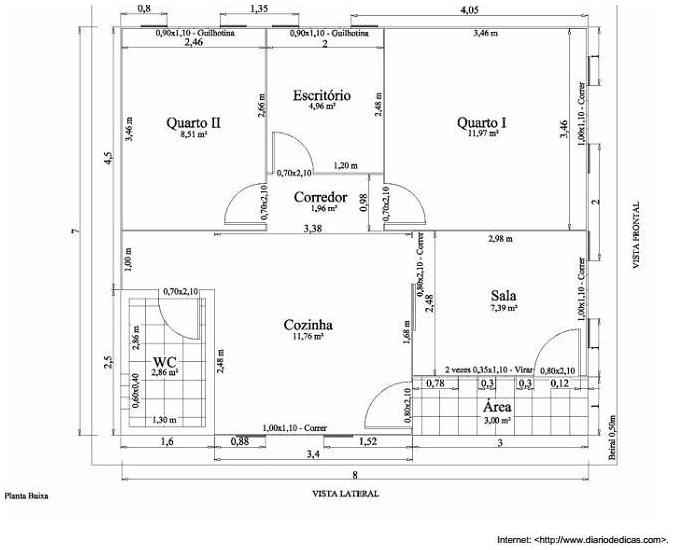
A NBR 8.036 fixa as condições exigíveis na programação das sondagens de simples reconhecimento dos solos destinada à elaboração de projetos geotécnicos para construção de edifícios. Essa programação abrange o número, a localização e a profundidade das sondagens. A seguir, é apresentada a planta de uma futura construção.

De acordo com as prescrições normativas, o número mínimo de sondagens para que se obtenha a melhor definição possível da provável variação das camadas de subsolo onde será erguida essa edificação é igual a

De acordo com as prescrições normativas, o número mínimo de sondagens para que se obtenha a melhor definição possível da provável variação das camadas de subsolo onde será erguida essa edificação é igual a