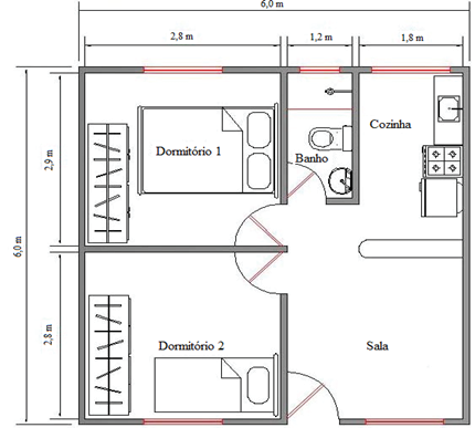
Na figura abaixo é mostrada uma planta baixa de um apartamento (as dimensões estão indicadas em metros). De acordo com o que é definido pela NBR 5410, no que se refere à previsão de cargas, a potência de iluminação e o número de tomadas de uso geral (TUGs) que devem ser previstas para o dormitório 1 são, RESPECTIVAMENTE:
