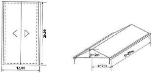
Para o telhado residencial representado na figura abaixo, o dimensionamento correto dos condutores verticais do sistema de águas pluviais é:
Considerando os dados:
I=150 mm/h
n = At/Ac
A= (a + h/2).b
Condutores de PVC de 100 mm
| ÁGUAS PLUVIAIS - CONDUTORES VERTICAIS | |||
| Diâmetro (mm) | Capacidade de vazão (L/s) | Área do telhado (m2) | |
| Chuva 150 mm/h | Chuva 120 mm/h | ||
| 50 | 0,57 | 14 | 17 |
| 75 | 1,76 | 42 | 53 |
| 100 | 3,78 | 90 | 114 |
| 125 | 7,00 | 167 | 212 |
| 150 | 11,53 | 275 | 348 |
| 200 | 25,18 | 600 | 760 |
Sendo o telhado:
