O TEXTO E AS IMAGENS A SEGUIR REFEREM-SE A QUESTÃO ABAIXO.
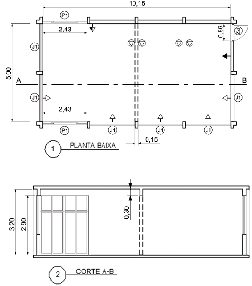
Um edifício deve ter vida útil longa, em função dos custos elevados de sua construção. Uma forma de se prolongar essa vida é executar reformas e obras de manutenção predial. Considere que a UFRJ fará reforma em uma área, unindo duas salas através da demolição de uma parede, de modo a obter um espaço adequado a um salão de refeições. Considere os desenhos técnicos reproduzidos a seguir:

Calcule o volume de entulho (sem empolamento) gerado pela demolição indicada em planta baixa e corte.